
U,:1.9 W/m2K-2.5W/m2K
水密性:9A-E1050 (EN12208) 0L0E08 8
氣密性:4級(EN 12207)
抗風壓:C2-C5 (EN 12210)
4000080827/15210415183
● 最大扇重160kg
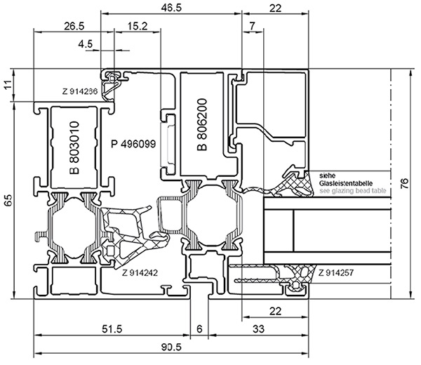
●纖細的固定框/扇組合寬度,最低為90,5mm
●固定框厚度:65mm;扇厚度:76mm
●工廠復合的23mm帶強化玻璃纖維的隔熱條
●玻璃厚度:22mm - 55mm
●中央密封條:EPDM隔熱中空膠條,硫化膠角或硫化框
●玻璃/槽口膠條:內外可視面狹窄,可連續置入
●所有膠條具有滑動聚合物涂層,適用于自潔玻璃
●可選隱藏或可視五金配件